Подготовка
Прежде чем рисовать план дома, нужно сформировать чёткое представление о том, каким он должен быть: его размеры, количество комнат, их назначение. Если вы не продумали модель будущего жилья, поищите в интернете картинки с вариантами строений. Возможно, что-то из готовых моделей вам понравится.
Когда выбрали внешний вид дома, составьте его план. Он – основа вашего проекта
Профессиональные архитекторы рекомендуют принять во внимание ориентацию по сторонам света (от неё зависит конечное расположение комнат)
Фундамент и стройматериалы для основания играют важную роль. Это основная часть планировки здания, которая зависит от обоих факторов: от веса материалов зависит фундамент строения.
Способ возведения фундамента выбран. Далее стоит выделить помещения, которые будут предназначены для каждого проживающего в доме человека, рассчитать их площадь. Размеры комнаты влияют на комфорт человека, ведь для каждого они будут разными. Если строение не одноэтажное, распределите комнаты на этажах дома по назначению
Мнение дизайнера на этом этапе также важно
Что нужно учитывать
На листе бумаги рассчитайте габариты будущего домика, учитывая площадь участка. Самостоятельное составление проекта дома требует особого внимания к каждой детали: дверям, крыше, окнам, перекрытиям. Вот важные факторы, которые нужно учитывать при проектировании:
1. Количество и размер комнат. Этот фактор зависит от количества жильцов в доме, образа жизни каждого. Помните, что привычки с возрастом меняется.
Вам будет интересно: Особенности получения технического плана квартиры
2. Температура.
В областях с холодным климатом рекомендуют использовать энергосберегающие технологии:
- На окна ставить двух или трёхкамерные стеклопакеты;
- Сократить до минимума периметр строения, размер каждой комнаты;
- Конструкцию стен делать многослойной;
- В дверях использовать тамбуры;
Для областей с тёплым климатом:
- Рекомендуется добавление открытых террас, балконов и лоджий;
- Покрывать грунтом, растущей зеленью эксплуатируемые плоские крыши;
- Использовать вертикальное озеленение стен строения;
- Устанавливать кондиционеры в помещениях.
3. Осадки.
Если в вашем регионе высокий уровень влажности, особое внимание уделите гидроизоляции:
Не скупитесь на водостоки и качество гидроизоляции
Также важно предусмотреть систему дренажа с отводом воды в канализацию, если вблизи жилья она есть, или канавы; Не будет лишней проверка расчётной нагрузки на стропила крыши (позаботьтесь о защите дома от снега).. 4. Ветер
Ветер
4. Ветер
Можно учесть розу ветров вашего региона. При сильных ветрах форточки поменьше делайте с той стороны, откуда они дуют, а форточки больших размеров – с обратной стороны фасада здания.
5. Архитектурно-строительные требования
Проектная документация должна соответствовать архитектурно-строительным нормам и требованиям. Рассмотрим, какие из них желательно знать, чтобы корректно составить техническое задание для создания проекта:
- Общие комнаты и гостиные площадью не должны быть менее 16 кв.м.;
- Для кухонь и других жилых комнат необходимым размером является 9 кв. м. или более;
- Высота жилых помещений – минимум 2.8 м., для районов с жарким и сухим климатом – 3 м.
- Минимальная высота подвала – 1.8 м.;
- Не проектируйте санузлы над жилыми помещениями. Это может привести к протечкам;
- Санузлы желательно устраивать без непосредственного входа из кухни и жилых комнат. Так будет исключено попадание неприятных запахов. Если эта рекомендация не выполняется, тогда обеспечьте хорошую вытяжку;
- Обязательно должен быть доступ работников пожарной службы и средств пожаротушения к местам возгорания в случае пожара.
Вам будет интересно: Все мелочи, трудности и ошибки при составлении сметы на строительные работы
Что нужно учесть?
Просто принять решение, предназначен проект для постоянного проживания или нет, недостаточно. Научиться составлять планы для постройки дома своими руками при этом несложно
Требуется обратить внимание прежде всего на функциональность замысла. Только в том случае, когда получится составлять не менее добротные планы, чем у профессиональных архитекторов, имеет смысл браться за дело. Неспециалистам при этом нецелесообразно браться за какие-то особенно сложные или крайне оригинальные решения
Неспециалистам при этом нецелесообразно браться за какие-то особенно сложные или крайне оригинальные решения.
Особо изощренные конструкции все равно не получится продумать во всех деталях безошибочно. Воплощение их тем более станет непреодолимой преградой. Нельзя забывать и о дизайнерских соображениях. Любой дом просто обязан давать не только комфорт, но и эстетическое наслаждение.
В ходе работы над проектом нужно четко представлять ответ на 4 главных вопроса:
- где именно предстоит строить;
- сколько людей и как будут пользоваться жилищем;
- как будут обустраивать сооружение и создавать инфраструктуру;
- как выглядит идеальное здание внешне и внутри.
Особенности чертежей фасадов
Общие положения мы перечислили. А есть ли какие-то нюансы, связанные именно с интересующими нас прежде всего фасадами? Как начертить фасад здания в соответствии с действующими правилами?
- Чертеж фасада должен давать ясное представление о внешнем виде фасада здания (см. красивые фасады частных домов), о пропорциях и размере отдельных элементов.
- Если фасад и план находятся на одном чертеже – они выполняются в едином масштабе и должны находиться в проекционной связи. Что это означает? Только то, что план располагается на чертеже под фасадом.
- Фасады разных сторон здания имеют собственные названия, которые указываются на чертеже. Различают главный, дворовый и боковые (торцевые) фасады.
- На чертеже указываются все конструктивные детали, которые будут присутствовать в реальном здании. К примеру, главный фасад школы на чертеже должен быть снабжен крыльцом, дворовый – пожарной лестницей; прорисовываются карнизы, слуховые окна и прочие, казалось бы, мелочи.
- В техническом проекте на фасаде принято показывать его собственные и падающие на него тени. Для этого чертеж красится акварелью или затеняется сухой тертой тушью.
- На чертеже фасада не указываются горизонтальные размеры. Однако с одной стороны на расстоянии 15-20 миллиметров от контура фасада проставляются общие размеры по высоте и отметки уровня для земли, окон и дверей, цоколя, карниза и конька крыши и верхних точек труб и вентиляции.
- Внизу фасада наносятся оси деформационных швов и перепадов высоты здания.
Перед нами – выполненный по всем правилам чертеж фасада. Весьма сложный, надо сказать. Он снят с вполне реального здания – Большого Драматического Театра на набережной Фонтанки в Санкт-Петербурге.
Как из чертежа сделать готовый проект дома
Конструктивный этап проектирования
На этом этапе проектируются все элементы дома, особенности фундамента, выбираются материалы для внутренней и внешней отделки стен. В общей сложности создаётся набор необходимых чертежей с описанием всех структурных частей будущего строения. Незаменимые материалы должны быть чётко просчитаны и закуплены сразу в нужном количестве.
Конструктивные чертежи проекта частного дома
Инженерно-техническая схема
Проект в инженерно-техническом оформлении представляет собой один из наиболее важных разделов, которому при планировке зданий уделяется не слишком много внимания. Несмотря на это, без него вряд ли удастся возвести подходящий и добротный дом. В его состав входит проектирование важнейших структур водоснабжения, кроме этого, систем отопления, вентиляции и электрических систем.
Инженерно-технический проект частного дома
Данный расчёт обязан включать в себя последовательное выполнение работ по укладке коммуникаций, что нужны для жизнедеятельности хозяев. В данном проектном документе указывается полная дополнительная информация о проектной мощности строения, о монтаже электропроводки, о системе громоотвода и защиты от дождевых молний. Дополнительно в проект вписывается установка системы охраны.
Проект дизайна дома
Финальный этап проектирования. На этом этапе решают, какой внешний вид обретёт будущий дом, а также какой будет внутренняя отделка помещений. Конечно, лучше если дизайн-проект будет продуман ещё на стадии подготовки основного проекта.
Общие принципы построения
Для постройки панельного, деревянного дома и любых других зданий важна разработка проекта. В типовом проекте немало документов, но будущих хозяев обычно интересуют чертежи многоэтажных и одноэтажных жилых зданий в разрезах, где можно увидеть результат процесса постройки.
В чертежи обычно входят фасады и разрезы:
- Фасад представляет собой изображение внешнего вида дома. В основном в таком чертеже присутствуют несущие элементы и детали отделки, воссоздающие точный вид здания;
- Разрез здания – графическое изображение коттеджа с рассечением по плану секущими плоскостями. На нем зафиксированы объекты, сквозь которые проходит секущая площадь и располагающиеся за ней.
Чертеж фасада позволяет представить, как дом будет смотреться внешне, здание в разрезе показывает внутреннее устройство комнат.
В проектных документах должно быть минимум два чертежа. В одном представлен поперечный разрез, в другом – продольный разрез. При сложной конфигурации постройки документов больше.

При создании чертежей высотных построек, частных домов, производственных и административных зданий требуется обозначить разрезы. Для этого применяются тонкие вертикальные и горизонтальные линии. Чаще всего их делают по стенам лестничной клетки. Алгоритм вычерчивания разреза:
- Вначале для главных несущих панелей и колонн (если они есть) нанести и указать вертикальные координационные оси;
- После сделать горизонтальные линии уровней, находящиеся перпендикулярно с координационными осями. Это линии тротуара или земли, примерного верха карниза, перекрытия чердака, полов на каждом этаже;
- Затем тонкими линями нанести контуры внутренних и наружных стен, перегородок. Зафиксировать высоту конька крыши, перекрытий между этажами и чердаком. Нужно нарисовать карниз стены, скат крыши, выносы цокольного этажа;
- Наметить дверные и оконные проемы в перегородках, наружных и внутренних стенах, остальные элементы постройки;
- Далее наносят необходимые размеры и отметки. Нужно начертить размерные и выносные линии и знаки, которые позволят сделать простановку высотных отметок, провести маркировку координационной оси;
- Сделать завершающее обведение сечей, поставить высотные отметки и разрезы, записать разъясняющие слова, названия, убрать ненужные линии.
Поможем подобрать готовый проект дома.
На странице проетной компании АРХИПЕЛАГ, Вы можете выбрать для себя уже готовый авторский проект дома. Просто воспользуйтесь строкой ПОИСК. Для того, чтобы поисковая система подобрала проект, наиболее точно соответствующий Вашим требованиям и пожеланиям, укажите в специальном поле параметры, которыми должен обладать будущий дом. Этот процесс займет считанные минуты.
Сделав выбор в сторону индивидуального проектирования, подберите и сохраните в свой аккаунт несколько вариантов наиболее понравившихся Вам проектов. Это поможет архитектору понять, чего Вы ожидаете от своего будущего дома. Рекомендуем сохранять не более 5 проектов, чтобы специалисты нашей мастерской смогли конкретнее понять Ваши пожелания.
Особенности чертежей фасадов
Общие положения мы перечислили. А есть ли какие-то нюансы, связанные именно с интересующими нас прежде всего фасадами? Как начертить фасад здания в соответствии с действующими правилами?
Вот инструкция.
- Чертеж фасада должен давать ясное представление о внешнем виде фасада здания (см. красивые фасады частных домов), о пропорциях и размере отдельных элементов.
- Если фасад и план находятся на одном чертеже — они выполняются в едином масштабе и должны находиться в проекционной связи. Что это означает? Только то, что план располагается на чертеже под фасадом.
- Фасады разных сторон здания имеют собственные названия, которые указываются на чертеже. Различают главный, дворовый и боковые (торцевые) фасады.
- На чертеже указываются все конструктивные детали, которые будут присутствовать в реальном здании. К примеру, главный фасад школы на чертеже должен быть снабжен крыльцом, дворовый — пожарной лестницей; прорисовываются карнизы, слуховые окна и прочие, казалось бы, мелочи.
- В техническом проекте на фасаде принято показывать его собственные и падающие на него тени. Для этого чертеж красится акварелью или затеняется сухой тертой тушью.
- На чертеже фасада не указываются горизонтальные размеры. Однако с одной стороны на расстоянии 15-20 миллиметров от контура фасада проставляются общие размеры по высоте и отметки уровня для земли, окон и дверей, цоколя, карниза и конька крыши и верхних точек труб и вентиляции.
- Внизу фасада наносятся оси деформационных швов и перепадов высоты здания.

Перед нами — выполненный по всем правилам чертеж фасада. Весьма сложный, надо сказать. Он снят с вполне реального здания — Большого Драматического Театра на набережной Фонтанки в Санкт-Петербурге
Состав проекта при каркасном строительстве
По каркасной технологии можно строить даже дома с несколькими этажами. Эти здания пригодны для постоянного проживания или коммерческих нужд. Их можно использовать круглый год или сезонно. Определяют предназначение строения заранее, отображая эту информацию в проекте.
Чертежи каркасных домов
В проектно-сметной документации содержится как текстовая, так и графическая составляющая. Первая часть включает подробное описание работ, перечень деталей, их спецификации.
Также в текстовую часть включены нормативные акты, регулирующие проведение расчетов для здания. Эта составляющая подразумевает указание стоимости каждого элемента и строительства в целом. Спецификация позволяет узнать об общей площади каркасного дома, а также о количестве необходимых материалов.

Важно! Графическая часть проекта включает множество схем, чертежей, эскизов и планов дома. Чертежи различают по степени детализации, в зависимости от требований заказчика

Чертежи каркасных домов для постоянного проживания содержат следующую информацию:
- схему распределения участка земли;
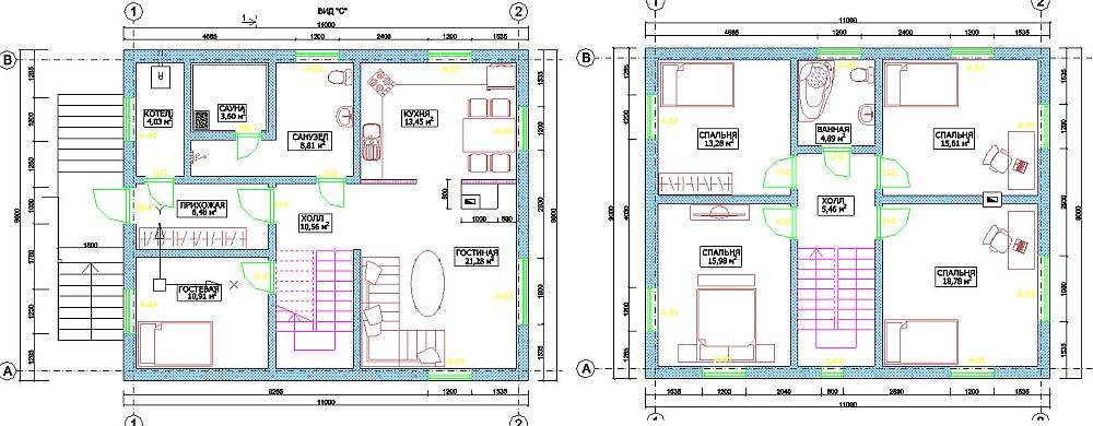
- детальную поэтажную схему размещения помещений внутри здания или план каркасного дома (объемно-планировочное решение);
- архитектурный проект или трехмерное изображение будущего дома на бумаге;
- схему установки кровли;
- поперечный и продольный разрез дома;
- схемы различных коммуникаций внутри дома – газоснабжения, электричества, вентиляции,
- водоснабжения и канализации, отопления.

Рабочая часть проекта
Любой проект включает эскизную и рабочую части. Последняя имеет три раздела:
- конструктивный;
- архитектурный
- инженерно-технический.
Конструктивный раздел включает список необходимых строительных работ и спецификацию всех материалов. В нем содержится подробный план фундамента, стен, перекрытий, кровли и других элементов.
Инженерно-технический раздел включает все данные относительно проведения различных коммуникаций.

Любой типовой проект не подразумевает привязку к местности, а является универсальным. Поэтому его необходимо адаптировать к конкретному участку. Это делают при помощи рекогносцировки местности, анализа рельефа, глубины залегания грунтовых вод, анализа почвы и других тестов.

Самой большой частью проекта является архитектурный раздел, включающий план участка, подробное описание и эскиз фасада, детальный план этажей с указанием точных размеров, указание всех лестниц, перегородок, окон, дверей, стен и т. д.

Весь проект и другие документы может создать и подготовить только специально образованный человек с наличием соответствующих разрешений на подобную работу. Можно обратиться как в строительную фирму, так и к частному лицу.
Тот, кто составляет проект, отвечает за его качество и правильность написания. Грамотно составленный проект сможет реализовать даже непрофессионал.
План типичного каркасного дома
Можно построить здание любых размеров, в зависимости от потребностей семьи, и выбрать любую из типичных планировок комнат внутри каркасного дома. Но в стандартном доме для семьи всегда есть коридор, кухня, гостиная, кладовая, гардероб, санузел, а также несколько спален.
Согласно современным строительным требованиям, для каждого человека в семье должно быть 20-23 кв. м. Это значит, что для стандартной семьи на 3-4 человека нужен дом площадью от 90 кв. м.
Наиболее оптимальное распределение площади:
- кухня – 20-30 кв. м;
- гостиная – 20-30 кв. м;
- спальня – 5-8 кв. м;
- коридор и санузел – по 2-4 кв. м;
- кладовая – 1-2 кв. м.
Конечно, это ориентировочное распределение внутренней площади, и каждый может поменять его под себя, но это нужно делать на этапе проектирования.

Важно учесть, насколько удобно будет подводить инженерные коммуникации в ту или иную комнату, где лучше всего расположить кухню и санузел, как будет проходить водопровод и канализация. Это все нужно решить до заливки фундамента
Каркасные дома хороши тем, что их легко можно перепланировать, в отличие от бетонных и кирпичных. Перегородки, не имеющие несущих функций, легко разбираются и переносятся в другое место. Благодаря этому планировку комнат можно менять, за исключением кухни и санузла, для которых требуются дополнительные коммуникации.
Сопутствующая документация к проекту и строительным чертежам
В проекте содержатся ведомости об этапах строительства и проведении отдельных видов работ. Генеральный план и подробные чертежи пополняют объясняющими таблицами и различными приложениями. Кроме отдельных планов, учитывающих личные предпочтения и особые потребности, понадобятся обязательные документы с ключевыми данными. В их числе — документация со списком отделочных и стройматериалов, информацией об их типе, документы с описанием инженерных решений, сведения о финансах и технических аспектах.
Понадобятся данные о высоте, площади, массе и объеме в кубометрах (кубатуре). Обязательно составляется описание функциональности здания. Это касается и документации с архитектурно-конструкционной оценкой. На основании проекта принято организовывать процесс, включающий определенную последовательность строительных работ и сопутствующие финансовые расходы.
В архитектурном паспорте содержатся:
- Копия лицензии проектировщика;
- План и схематические изображения кровли в разрезе;
- Поэтажные планы;
- Расцветка наружных стен;
- Пояснительная записка.
Мансарда и дачный дом
Чтобы обустроить мансарду, нужно установить монолитные перекрытия, поддерживающие первый и верхние этажи. Они в основном устанавливаются там, где планируется наличие санузла в доме или какой-нибудь комнаты. Такое монолитное перекрытие заливают в виде монолитного пояса, расположенного между этажами. Когда проектируется чертеж дома с мансардой, за основу берется проект первого этажа, из которого удаляются все лишние детали. В результате получается чертеж мансардного этажа.
Например, мансарда может иметь вид маленькой комнаты. Ее легко превратить в гардеробную или обустроить спальню.

Проект и планировка мансарды и первого этажа дачного дома 7х7
Если на мансардном этаже планируется установить камин, необходимо заранее предусмотреть выход каминной трубы. Для эстетичного вида, можно сделать на мансардном этаже небольшой открытый балкон. После того как будет готов чертеж других этажей и мансарды, делается проект крыши с базированием на всех особенностях мансарды.
Совершенно отдельно вычерчивается фасад дачного дома, показывается внешний вид строения. На основе такого чертежа подбирается угол наклона кровли, рассчитывается нужное количество окон. На последнем этапе выбирается материал, и производится расчет его необходимого количества.
Разрез многоэтажного дома с подвалом
Министерство регионального развития, строительства и ЖКХ
4 Приказом Федерального агентства по техническому регулированию и метрологии от 11 октября 2012 г. N 485-ст введен в действие в качестве национального стандарта Российской Федерации с 1 мая 2013 г.
5 ВЗАМЕН ГОСТ 21.501-93
Информация о введении в действие (прекращении действия) настоящего стандарта публикуется в ежемесячно издаваемом указателе «Национальные стандарты».
Информация об изменениях к настоящему стандарту публикуется в ежегодно издаваемом информационном указателе «Национальные стандарты», а текст изменений и поправок — в ежемесячно издаваемом информационном указателе «Национальные стандарты». В случае пересмотра или отмены настоящего стандарта соответствующая информация будет опубликована в ежемесячно издаваемом информационном указателе «Национальные стандарты»
Проекты одноэтажных домов
Работы по строительству одноэтажных домов проводятся достаточно быстро. Монтажные работы стоят недорого. Следует позаботиться на этапе проектирования, чтобы проходных помещений было меньше
При создании чертежа важно определить количество жильцов
Планировка жилых домов должна быть тщательной. Их теплоотдача гораздо выше, чем в многоквартирных зданиях. Причина в том, что все наружные стены сообщаются с улицей, к тому же нет подъезда
Локализации помещению в здании важно уделить особое внимание

Планировку для одноэтажного дома можно сделать самостоятельно двумя способами:
- Нарисовать вручную. Тогда потребуется миллиметровая бумага. При ее отсутствии подойдет лист с клетчатой разлиновкой. Этот метод подходит для людей, опытных в черчении. Иначе в чертеже будет много неточностей;
- Применить проектировочную компьютерную программу. Таким образом, удастся создать не только главные наброски, а полный чертеж дома по всем нормам строительства. Чтобы не возникло ошибок, стоит покупать лицензионные программы;
- Воспользоваться 3D-редактором. Это выбор для творческих людей. Создается трехмерный проект, прекрасно передающий размеры и локализацию помещений, дизайнерские идеи. Таким образом, удастся создать разрез промышленного здания или жилого дома.
Даже если дом небольшой, распределение пространства можно сделать грамотно
При создании чертежа важно учесть следующие нюансы:
Количество комнат с учетом их назначения, их локализацию
Важно учесть не только главные помещения, созданные для каждого жильца и функциональные комнаты (санузел, обеденная зона), но и гостиную, кладовку, прихожую;
Спальни следует создавать маленькими, а гостиную – просторной;
Увлечения жильцов тоже следует учесть
Некоторым хозяевам важно предусмотреть баню, тренажерный или читальный зал;
Спальню детей стоит планировать возле комнаты родителей;
Чтобы водопровод и канализационная система не занимали много места, обеденную зону, санузел и бойлер лучше планировать в одной линии;
Сохранению тепла будет способствовать тамбур или утепленная веранда;
При расчете стоит принять во внимание, что на каждого взрослого выделяется 8 кв. м
пространства;
Можно построить цоколь, чтобы увеличить полезное пространство.
Как делать проект: подготовительные этапы создания чертежа
Перед тем как сделать чертеж частного дома, нужно определиться с тем, каково будет его прямое предназначение: будет ли он служить загородным местом отдыха в летнее время или жильем для круглогодичного обитания всей семьи. Количество домочадцев тоже необходимо иметь в виду. При этом нужно учесть образ жизни членов семьи, их вкусы, предпочтения и увлечения.

Перед началом создания чертежа нужно определиться с количеством жильцов дома
Если будущие обитатели дома – приверженцы тихого образа жизни, то здание нужно размещать на территории, которая находится подальше от проезжей части и соседних участков. Лучше всего – в глубине сада. Для открытых, общительных людей дом можно построить в начале участка, выставив напоказ фасад коттеджа и красивый ландшафт перед ним. В техническом плане особенно важны геодезические данные, полученные путем исследования территории. Они укажут на особенности поверхности, состав грунта и наличие наклонов, что позволит создать план местности.
Чтобы проектировка дома была упорядочена, процесс условно разделяют на этапы, которые потом отображаются в следующих разделах готового проекта дома:
- эскизном;
- архитектурном;
- конструктивном;
- инженерно-техническом;
- дизайнерском или отделочном.
Определившись с месторасположением и предназначением будущего жилища, можно приступать к проектировке дома. С этой целью делают первоначальные наброски. При наличии элементарных художественных навыков хозяева смогут сделать это самостоятельно, даже без специальной компьютерной программы для постройки дома. На базе набросков составляется основной эскиз. В соответствии с ним подготавливают все остальные подробные чертежи и определяются с планировкой будущей постройки.
Что необходимо учитывать при составлении схемы дома
Уже на этапе составления эскиза нужно четко определиться с количеством этажей, типом кровли, внешним видом фасада и фронтальных частей дома, вплоть до количества окон, балконов, наличия террасы или мансарды. Эскизный проект также предполагает наброски вида здания в продольном и поперечном разрезах, где указываются особенности конструкции и материалы, из которых предполагается возводить дом.

Пример чертежа одноэтажного дома из кирпича с мансардным этажом
Перед тем как нарисовать план дома, необходимо определиться с расположением участка и изучить ориентацию относительно сторон света. Исходя из этих данных, определяется месторасположение комнат. Их количество зависит от того, сколько людей будет жить в здании и как часто будут приезжать гости на длительное время. Размещение помещений и функциональное предназначение каждого из них также является важным элементом.
Далее требуется определить, какие конкретно комнаты будут отведены членам семьи, а какие – гостям и работникам, если предполагается формирование определенного штата. Не следует забывать о планировке помещений, в которых будет собираться вся семья, – это столовая, зал или гостиная.
Важно учесть предпочтения и увлечения обитателей дома, чтобы выяснить необходимость включения в планировку тренажерного зала, бассейна или сауны, зимнего сада либо оранжереи, библиотеки с кабинетом или просторной мастерской

При составление эскизного проекта дома нужно учитывать все пожелания будущих жильцов
Самостоятельное черчения разреза дома
Если хозяин участка решил самостоятельно изготовить чертёж, на котором будет изображен разрез здания, то ему не обязательно иметь глубоких познаний в чертёжном деле, так как данный вид планировки довольно прост в исполнении.
Для создания такого чертежа можно следовать следующему плану:
- В начале необходимо указать координационные оси на листе будущего чертежа. Это поможет более качественно воссоздать планировку жилого помещения в программе.
- Чтобы чертёж получился максимально достоверным, для переноса всех пропорций помещения следует воспользоваться линией в 45 градусов, которую нужно разместить с правой стороны плана.
Все дополнительные элементы в выбранном деревянном доме из сруба можно просто перенести с других аналогичных чертежей фасада сооружения.
- Теперь можно переходить к черчению самих стен в здании. Если используются компьютерные программы для создания чертежа в разрезе, то в них можно воспользоваться функцией параллельного переноса, что значительно упростит нанесение изображения всех перегородок в частном доме.
Эти советы помогут облегчить процедуру самостоятельного изготовления чертежа жилого дома в разрезе.































