Типы и характеристики облицовочных материалов
Облицовочные плиты изготавливаются из различных композитов. При их производстве могут быть задействованы давно известные материалы, сочетающиеся с современными компонентами. Благодаря инновационным технологиям ежегодно на рынке появляются усовершенствованные, новейшие типы фасадных панелей. Наиболее популярные виды фасадных панелей для наружной отделки дома:
| Название | Особенности |
фиброцементные
| Используется при отделке стен и для сооружения кровли. |
| металлические
| Применяется для вертикального сайдинга. |
| древесно-полимерный композит
| Создан для наружных работ, допустим монтаж в помещениях в повышенной влажностью. |
| клинкерные
| Актуальны для климата северо-востока. |
| термопанели
| Используются для утепления стен. |
| пластиковые
| Подходят для жилых, складских помещений. |
Различаются они не только по материалу, из которого изготовлены, но и по форме, размерам. Они могут быть выполнены в виду прямоугольных или квадратных панелей, досок различной ширины. Некоторые отделочные материалы бывают сложных форм. Но это обстоятельство не сказывается отрицательно при монтаже панелей. Облицовочные плиты делятся на три основных группы.
| Тип | Характеристика |
| Однослойные плиты | Используются для декоративной отделки стен. Имеют небольшой вес, устанавливаются с дополнительным утеплителем. Хорошо подойдут для облицовки деревянного дома. |
| Двухслойные | Оборудованы утеплителем, который прикреплен к наружному слою. Защищает стены от резких перепадов температур, подходит для декоративной отделки. |
| Трехслойные | Данный тип используется в сэндвич-панелях. Материал состоит из двух защитных слоев, внутри расположен качественный утеплитель. Облицовочные плиты прослужат долгие годы в условиях экстремально низких температур. |
Монтаж цокольных панелей: порядок действий
Чтобы выполненная отделка прослужила достаточно долго, монтаж цокольных панелей следует выполнять с соблюдением определённой последовательности действий. Это позволит надёжно зафиксировать каждый элемент и предотвратит его смещение в результате внешнего воздействия.
ФОТО: unimart24.ruВсе работы можно выполнить самостоятельно
Подготовка к установке панелей
Монтажные работы начинаются с подготовки цоколя здания. Для этого:
- оценивается состояние основания. Все выявленные дефекты устраняются. Кривизна устраняется. Убираются значительные перепады по высоте. Они могут стать причиной ослабления обрешётки;
- основание штукатурится либо шпаклюется. После полного высыхания сформированного покрытия на поверхность наносится два слоя грунтовки;
- выполняется утепление. Теплоизолятор может крепиться прямо на стену либо устанавливаться под обрешётку. В обоих случаях выполняется разметка и установка прямых подвесов для крепления направляющих ГКЛ;
- монтируется обрешётка.
Отделка цоколя панелями: алгоритм действий
Чтобы качественно выполнить отделку цоколя панелями, следует действовать в следующей последовательности:
- крепление стартовой или J-планки к обрешётке либо непосредственно к стене при отсутствии утеплителя. Элемент располагается строго горизонтально. Саморезы следует закручивать с шагом в 40 см, располагая точно посередине овальных отверстий. При закручивании саморезов надо оставлять небольшой ход из-за возможного температурного расширения. Если линия цоколя относительно земли располагается неровно, материал снизу подрезают, а монтаж выполняют без использования стартовой планки прямо к обрешётке;
- выполняется установка панелей в направлении слева направо либо снизу вверх. Первую устанавливают в стартовую рейку и фиксируют с помощью саморезов. Следующую вставляют аналогичным образом и заводят влево, обеспечивая полный контакт с первой посредством замкового соединения. Установленные элементы крепят к верхнему краю саморезами;
- с помощью угловых профилей оформляются наружные углы и выступающие части. Их монтируют сверху готового полотна, декорируя места соединений и предотвращая проникновение внутрь воды и ветра;
- сверху монтируется финишная планка либо J-планка.
ФОТО: unimart24.ruМонтаж выполняется в соответствие со схемой
Watch this video on YouTube
Watch this video on YouTube
Размеры
Обрешетку под сайдинговые панели изготавливают в соответствии с площадью облицовочных панелей. Чаще всего ее размеры могут составлять 30 × 40 мм, 50 × 50 мм, 50 × 75 мм и 50 × 100 мм. При этом длина конструкции может быть разной, в зависимости от особенностей постройки здания. В том случае, если для каркаса используется деревянный брус, то его выбирают с влажностью не более 12% и делают шаг между креплениями в 40 см.
Для металлического каркаса рекомендуются П-образные профили длиной 3 м и сечением 60 × 27 мм. Это стандартные профиля, которые имеют отбортовку по кромке и применяются для установок гипсокартонных конструкций. Изделия сечением 50 × 40 мм и 40 × 40 мм не оснащены отбортовкой, поэтому они для обрешетки непригодны. Вертикальные стойки крепят на расстоянии друг от друга в 60 см, а горизонтальные распоры устанавливают с шагом 40 см.
Размер конструкции следует рассчитать таким образом, чтобы нагрузка на уголки и подвесы не превышала 40 кг. В противном случае конструкция не выдержит большой вес и может деформироваться
Кроме этого, важно учитывать и то, что под каркасом будет размещена теплоизоляция. Поэтому шаг между профиля нужно делать соответственно ширине панелей пенополистирола. Если сайдинг тяжелый, то потребуется делать обрешетку с частой установкой реек
Если сайдинг тяжелый, то потребуется делать обрешетку с частой установкой реек.
Габариты обрешетки также зависят от того, будет использоваться для отделки горизонтальный или вертикальный сайдинг. В данном случае брусья или профиля располагают перпендикулярно облицовочный панелям, соблюдая расстояние между ними в 60 см.
Лакокрасочные материалы
Огнестойкая краска совмещает функции защиты и декоративные свойства. Она образует плёнку, которая сохраняет предметы от горения. Краски с эффектом вспучивания на водной и органической основе применяют для металлических поверхностей. Одним из достоинств является то, что её можно удалить с поверхности.
Огнестойкие наполнители в красках:
- вермикулит;
- перлит;
- каменная вата;
- базальтовые волокна.
Во время испытаний определяют группу огнезащиты товара. При взаимодействии с огнём вспучивающийся слой увеличивается в 70 раз. Так образуется коксовая прослойка, которая защищает объект. Распадаясь, краска выделяет компоненты, которые замедляют процесс горения.
Выбирая краску, обращают внимание на стоимость и материал используемой поверхности. В продаже есть следующие краски:
В продаже есть следующие краски:
- NEOMID по металлу (6 кг) стоит 1714 р.
- NEOMID для воздухоотвода (6 кг) – 1714 р.
- NEOMID для кабеля (6кг) – 1985 р.
- NEOMID по дереву (25 кг) – 8039 р.
- Термобарьер для металлических конструкций – 375 руб/кг.
- ФРИЗОЛ-ОК по металлу (25 кг) – 5750 р.
- Протект Ф для металлоконструкций (20 кг) – 4050 р.
- Pirocor по металлу – 250 руб/кг и другие.
Огнеупорная краска Источник nebezopasno.com Все краски наносят кистями, валиками, распылителями. Толщину слоя, рекомендованные грунтовки производитель указывает на упаковке.
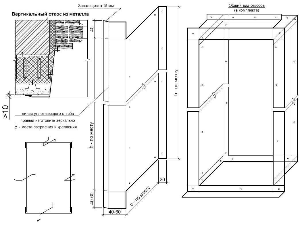
Подготовка к установке
Установка современных металлических откосов на окна своими руками потребует подготовки специальных материалов и инструментов для проведения данного типа работ:
- металлические листы;
- уровень;
- крепежи;
- монтажную пену и силиконовый герметик;
- шуруповерт и биты;
- малярный нож;
- ножницы по металлу;
- рулетку.
Излишки монтажной пены необходимо срезать
Подготовка поверхности состоит в том, что с нее удаляется строительная пыль и загрязнения. Излишки монтажной пены срезаются малярным ножом, а швы и стыки обрабатываются при помощи силиконового герметика. Установка металлического откоса на окна своими руками должна производиться после высыхания швов.
Требования к фасадным панелям
Стоя перед выбором облицовочного материала, нужно ориентироваться не на внешний вид, а в первую очередь на качественные характеристики плит. Они зависят от технологии производства облицовки, но есть ряд качеств, которыми должны быть наделены хорошие панели.
Придя в магазин, акцентируйте внимание продавца на этих пунктах:
- Экологичность материала;
- Параметр влагостойкости;
- Класс горючести;
- Устойчивость на разрыв;
- Способность выдерживать ударные нагрузки;
- Количество циклов заморозки-разморозки;
- Степень реалистичности имитируемой фактуры природному материалу;
- Срок эксплуатации, который заявляет производитель.
Чтобы в океане строительных материалов и брендов найти то, что не разочарует впоследствии, нужно провести сравнение различных типов панелей. Только сопоставив все плюсы и минусы можно сказать, правильно ли вы выбрали материал для наружной облицовки фасадными панелями.
Достоинства и особенности
Наиболее широкое распространение данный вид покрытий получил при оформлении коммерческой недвижимости. Тем не менее, особенности и некоторые характеристики панелей такого типа сделали их популярным вариантом оформления и в частном секторе. На это повлияло сразу несколько факторов:
- Это достаточно лёгкий материал для облицовки – вес панелей составляет от 7 до 9 килограмм на метр площади обшивки.
- Отделка получится морозостойкой и способна выдерживать около 300 циклов заморозки.
- Поверхность конструкции будет влагонепроницаемой.
- Материал пожаробезопасен и относится к классу «НГ», то есть, не горит.
- Рабочие температуры, при которых плиты сохранят все свои свойства составляют от -50 до +50 градусов.
- Малая толщина – всего пять с половиной сантиметров.
- Есть возможность выбрать металл, из которого будут сделаны панели – нержавеющая сталь, алюминий, оцинкованная сталь, а также существуют стальные элементы с полимерным покрытием.
- Можно выбирать форму и конфигурацию деталей, а также цвет будущего покрытия.
- Поверхность не ржавеет и устойчива к разным едким веществам – кислотам и щелочным растворам.
- Высокая прочность в плане механических воздействий.
Все сказанное относится к деталям, имеющим многослойное строение и внутренний слой утепления. Утепляющая прослойка формируется из различных материалов, в зависимости от производителя. Есть еще одна разновидность металлической обшивки, применяемая для отделки фасадов – простые металлические стеновые панели для наружной отделки. Они не имеют внутреннего слоя утеплителя и похожи на применяемые для внутренней отделки реечные покрытия.
При большом наборе достоинств у этого вида обшивки есть всего пара не особенно существенных минусов. Первый – слабая теплоизоляция даже в том случае, когда применяются детали с внутренним слоем утеплителя. Поэтому, при монтаже обычно монтируется еще и теплоизоляция непосредственно на оформляемую поверхность. Однако, обычно это и так делается, так что, минус не самый важный.
Второй недостаток – более сложный, по сравнению с остальными видами обшивки монтаж. Все дело в большом количестве дополнительных элементов конструкции, без которых осуществить качественный монтаж не получится. Здесь будут и стартовые, и финишные планки, угловые элементы и основа всей конструкции – каркас из металлических деталей. Процесс сборки при этом, сложностью не отличается и происходит довольно быстро.
Кассетная металлическая фасадная панель: свойства
К основным свойствам металлической панели для облицовки фасада можно отнести:
- Гибкий дизайн. Множество форм и широкий выбор секций открывают широкие возможности в процессе формирования профиля. Фасадные стены могут быть, как вогнутыми, так и выпуклыми, если правильно подобрать для отделки кассеты. Придать нужный размер кассетам и просверлить отверстия для крепления можно прямо на месте ведения работ.
- Легкий вес и высокие показатели прочности. Это свойство материала на руку архитекторам, которые могут придавать дому нужные ему технические характеристики. Отделка дома панелями позволяет свести к минимуму статическую нагрузку, кроме того, материал легко обрабатывать и транспортировать на место из-за небольшой массы.
- Долгий срок службы. Фасадные панели отлично справляются с воздействием на них окружающей среды, выдерживают испытания УФ-лучами. Отделка фасада таким способом станет гарантией его продолжительного срока использования.
- Устойчивость к возгоранию. Фасадные материалы, используемые для создания кассет, не воспламеняются, не выделают вредных газов, поэтому относятся к группе негорючих.
- Вариации отделки фасада. Широкий выбор цветов панели позволяет воплощать в жизнь самые интересные творческие идеи. Фасады можно отделать с 3D эффектом, вместе с тем повышая его эксплуатационные качества.
https://youtube.com/watch?v=waS3qhh5_RY
Последовательность работ
Установка металлических откосов на окна предполагает проведение замерочных работ. Ширина и высота изделия будут соответствовать внутренним и внешним параметрам проема. Изготовление верхнего, нижнего и боковых металлических элементов производится путем вырезания их из заготовленного металлического листа в соответствии с полученными измерениями.
Схема подрезки металлического откоса
Схема подрезки нижнего металлического отлива
Схема подрезки верхнего металлического отлива
На втором этапе работ происходит установка отлива, горизонтальное положение которого контролируется строительным уровнем. Нижний стык стены и оконной рамы оснащается специальным теплоизоляционным материалом и диффузионной лентой для шумоподавления и защиты от влаги.
Сначала необходимо установить отлив
Во время крепления отлива монтажную пену наносят на оконный проем и на отлив с внутренней стороны. Чтобы он не загнулся из-за расширения пены, на время его плотно прижимают. После того как отлив закреплен, приступают к монтажу металлических откосов.
Перед тем как устанавливать металлические откосы, необходимо те места, в которых они будут соприкасаться с рамой окна, обработать герметиком.
Металлические откосы закрепляют с помощью монтажной пены
Сначала устанавливают боковые элементы с соблюдением необходимого уклона изнутри наружу. Верхняя и нижняя части корректируются при помощи ножа в зависимости от уровня наклона.
Боковые элементы должны быть установлены в вертикальном положении и притянуты при помощи шурупов. Верхняя часть подгоняется под боковые элементы. Она выравнивается относительно внешних углов и закрепляется саморезами.
На завершающем этапе все места прилегания обрабатываются герметиком.
При монтаже откосов на фасад из профнастила используют горизонтальные перемычки
В случае когда фасад дома обшит профнастилом, при отделке оконных проемов необходимо использование горизонтальных перемычек. Это боковые полочки, изготовленные из профлиста, которые с одной стороны крепят к стене, а с другой – к металлопрофилю. Стальные наличники придают фасаду завершенность.
Установка систем вентилируемых фасадов
Инструменты
Крепление вентилируемого фасада проводят с использованием таких инструментов:
- нивелира;
- рулетки;
- отвеса;
- шуроповерта;
- ножниц по металлу;
- заклёпочных клещей.
Разметка и монтаж кронштейнов
Разметку выполняют с учётом проектного шага кронштейнов при отступе между краем стены и осью кронштейна не меньше 100 мм.
Кронштейн для вентилируемых фасадов – надежная и простая конструкция В стене просверливают отверстия под анкеры соответствующего диаметра и устанавливают кронштейны ККУ. Между стеной и креплением устанавливается изолоновая или паронитовая прокладка. Размер кронштейнов определяется конкретными условиями монтажа (толщиной утеплителя, неровностями стены).
Установка теплоизоляции и ветрозащиты
Монтаж утеплителя должен быть плотным, без пустот в швах. Плиты крепятся с помощью 5-7 тарельчатых дюбелей на 1 квадратный метр. Схема установки утеплителя При использовании не кашированного утеплителя ветрозащиту устанавливают из влагозащитной плёнки с перехлёстом 100 мм. Первый из двух слоёв утеплителя дополнительно крепится 2 дюбелями к плите (на завершающем этапе потребуется 3-4 дюбеля).
Установка горизонтальных профилей
Для крепления горизонтального профиля для вентилируемых фасадов КПГ к кронштейнам ККУ используются заклёпки или саморезы 4,8х28. При недостаточном выравнивании элементов конструкции используют крепления для вентилируемых фасадов соответствующих размеров.
Установка вертикальных профилей
- Вертикальная обрешётка из шляпного профиля КПШ-90х20х3000 крепится к горизонтальной обрешётке саморезами 4,8х28.
- Основные профили устанавливаются по вертикальным стыкам кассет фасада, чётко соблюдая монтажное расстояние. Если ширина кассеты больше 700 мм, то производят дополнительную установку промежуточных профилей КПШ-50х20х3000.
- Узлы примыкания элементов фасадной системы выполняют Z-образными профилями.
Установка вертикальных профилей
Установка фасонных изделий
- Используя крепежи для вентилируемых фасадов, к вертикальной обрешётке КПШ фиксируют фасонные изделия.
- Основные профили установленной вертикальной обрешётки с видимой части покрыты цветным полимером или декорированы цветной полосой.
Установка фасадных кассет МП 1005/23/20
- Фасадные кассеты устанавливают слева направо и снизу вверх. Перед монтажом их боковые стороны освобождаются от защитной плёнки.
- Для крепления кассеты к несущим вертикальным профилям используются саморезы 4,8х28. Кассеты крепятся нарезающими винтами до положения шуроповёрта «не дожимать», что компенсирует температурную деформацию в процессе эксплуатации.
- После завершения монтажа удаляют защитную плёнку.
Схема вентилируемого фасада
Установка фасадных кассет МП 2005/25/30
Надежный и простой крепеж для вентилируемых фасадов – саморез 4,8х28 Такие элементы устанавливают снизу вверх. Перед монтажом их боковые стороны освобождают от защитной плёнки. Низ кассет защёлкивают к начальной планке, а их верх крепят к несущим вертикальным профилям при помощи оцинкованных саморезов 4,8х28. Элементы крепят нарезающими винтами. Верхнюю кассету защёлкивают за верх предыдущей детали. Вертикальный промежуток между кассетами фасада (руст) устанавливается шаблоном от 5 до 30 мм. Рекомендуемое значение этой величины – 30 мм.
Дополнительные элементы конструкции
Перед монтажом следует позаботиться о дополнительной оснастке, в которую входят такие элементы:
- фасонный фартук;
- уголок крепления вент фасадов;
- вентиляционная решётка.
Фасадные вентиляционные решетки предназначены для защиты пространства между облицовкой и стеной от попадания посторонних предметов и обеспечения циркуляции воздуха. При их выборе стоит изучить фото из каталогов фирмы-производителя, чтобы вся система выглядела гармонично. Фасонные фартуки обеспечивают прохождение воздуха и предотвращают попадание осадков между облицовкой и стеной основания.
Лучшие фасадные панели
Дальше следует список самых популярных и знаменитых фасадных панелей с указанием их характеристик, которые помогут выбрать подходящий строительный облицовочный материал.
5 – GL Я-Фасад «Крымский сланец Янтарь» 153,5х34,5
Облицовочные плиты сайдинга GL Я-Фасад «Крымский сланец Янтарь» 153,5х34,5 предназначаются для обеспечения защиты и украшения стен строений и сооружений. Плитка панели с длиной 1535 мм, шириной 345 мм и толщиной 20 мм обеспечит защитой поверхность фасада площадью 0,46 кв. м от воздействия разнообразных проявлений погодных условий окружающей среды. Упаковка поставляемой продукции включает в себя плитки в количестве 15 штук, весом 0,96 кг каждая.
GL Я-Фасад «Крымский сланец Янтарь» 153,5х34,5
Достоинства:
- Имитация горной породы;
- Качественный материал ПВХ.
Недостатки:
Небольшая толщина плиты.
4 – Аэлит «Ракушечник» 95х61,5
Фасадные панели Аэлит «Ракушечник» 95х61,5 представляют собой облицовочные плитки в виде красивых отпечатков ракушек на поверхности строительного материала, которые превосходно защищают стены строения, а также оформляют и украшают их. Облицовочная плитка 950 мм на 615 мм позволяет сразу покрыть поверхность стены здания площадью 0,58 кв. м. Материал, из которого состоит внешняя отделка, способен выдерживать диапазон температур окружающей среды от -60 до +80 градусов.
Аэлит «Ракушечник» 95х61,5
Достоинства:
- Устойчивость к атмосферным и физическим воздействиям;
- Продолжительность эксплуатации до 50 лет.
Недостатки:
Малая толщина плитки.
3 – Доломит «Скалистый риф» 2000х220
Сайдинг из России Доломит «Скалистый риф» 2000х220 предназначен для облицовки цоколя и фасада любого частного и загородного коттеджа. Комплектация поставки фасадной панели содержит 10 плиток размером 200 см на 22 см, весом 1,2 кг каждая. Такие размеры и габариты плитки позволяют покрыть стену сооружения площадью в 0,44 кв. м. Облицовочные панели жемчужной цветовой окраски имитирует камень, плитки которой соединяются между собой специальными замками.
Доломит «Скалистый риф» 2000х220
Достоинства:
- Стойкость к резким изменениям температуры окружающей среды;
- Легкость и удобство монтажа и установки панелей.
Недостатки:
Небольшая площадь плитки панели.
2 – Canada Ridge 64,5х52,5
Российская облицовочная панель для фасадов зданий Canada Ridge 64,5х52,5 предназначена, в первую очередь, для защиты стены частного или загородного домов от механических повреждений и воздействия погодных условий климата нашей страны. Фасадная плитка с габаритами 645 мм на 525 мм обеспечивает покрытие фасада 0,388 кв. м стены сооружения. Материал изготовлен под действием давления из полимерного многокомпонентного сырья, что обеспечивает прочность и долговечность фасадной панели.
Canada Ridge 64,5х52,5
Достоинства:
- Легкий вес;
- Устойчивость к ультрафиолетовому излучению.
Недостатки:
Малая площадь покрытия.
1 – FineBer «Русская крепость» 1130х450
Фасадная панельная плитка российского производителя FineBer «Русская крепость» предназначена для облицовки, оформления и защиты фасадов зданий частных и загородных домов. Красивый дизайн панели в виде кирпича коричневого или белого цвета отлично демонстрирует современный вкус владельца дома, а также облицовочный материал выглядит достаточно роскошным и богатым. Плитка фасадной панели размерами 1130 мм на 450 мм состоит из поливинилхлорида и весит 1,540 кг. Обладает высокой прочностью и имеет уникальные декоративные свойства.
FineBer «Русская крепость» 1130х450
Достоинства:
- Устойчивость к износу;
- Современный дизайн и внешний вид.
Недостатки:
Не выявлено.
Виниловый сайдинг
Виниловый фасадный сайдинг является лидером продаж
Согласно исследованиям маркетологов, виниловые сайдинг-панели являются лидерами продаж на рынке сайдинга в России за последние годы. Причина популярности винилового сайдинга, опять-таки, кроется в хорошем соотношении цены и качества материала.
Пластик практичен, долговечен, способен обеспечить неплохую защиту от неблагоприятных природных воздействий. Он легко и быстро монтируется, крепится на абсолютно любую поверхность, практически не деформируется и не выгорает на солнце с течением времени, устойчив к возникновению грибка и других биологических факторов.
Рекомендуем ознакомиться с производителями винилового сайдинга для фасада на нашем сайте.








































